![]() |
![]() |
![]() |
![]() |
![]() |
![]() |
![]() |
![]() |
![]() |
![]() |










BÜRO- UND GESCHÄFTSHAUS
Anschrift:
Altenwall 1-3, Bremen
Bauherr:
Grundstücksverwaltungsgesellschaft Schwachhausen GmbH, Bremen
Ausführung:
2008-09
Preis:
BDA-Preis 2010
Verantwortliche Mitarbeit:
Martina Schaffors
Projektsteuerung und Bauleitung:
Dietrich Architekten und Ingenieure
Fotos:
Stefan Müller
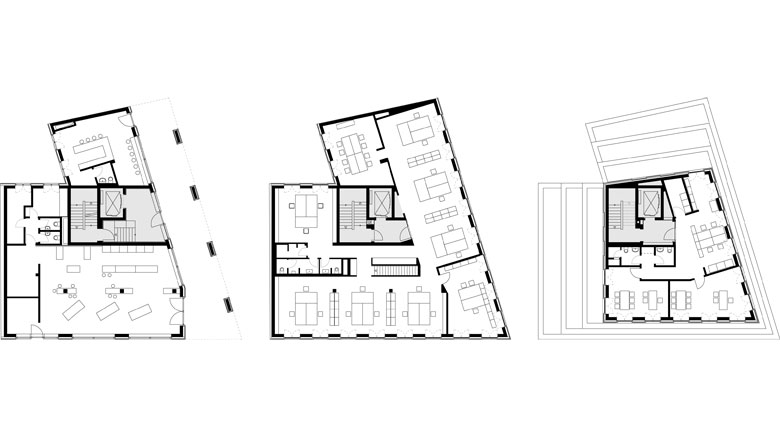
Die 8-geschossige Bebauung schließt eine der letzten Baulücken in der geschlossenen Bebauung entlang der historischen Wallanlagen, die seit dem Ende des Weltkriegs durch einen Flachbau nur teilweise besetzt war. Der Baukörper bildet ein Pendant zum gegenüberliegenden historistischen Polizeihaus und vervollständigt die Torsituation am Eingang zur Bremer Innenstadt. Die Fassade ist durch die stehenden Fensterformate klassisch vertikal strukturiert. Das 1. Obergeschoss ist mit seinen querformatigen Fenstern als Mezzaningeschoss deutlich herausgearbeitet. Die oberen Geschosse sind im Sinne einer moderaten Höhenentwicklung gegenüber der Bauflucht leicht zurückgestaffelt. Mit der Fassadenverkleidung aus hellem Kalkstein wird das Gebäude dem repräsentativen Anspruch des Bauplatzes gerecht.