![]() |
![]() |
![]() |
![]() |
![]() |
![]() |
![]() |
|
![]() |








DIE NEUE BOTANIKA BREMEN
Anschrift:
Deliusweg 40, Bremen
Bauherr:
Botanika GmbH
Ausführung:
2010
Projektsteuerung:
Dietrich Architekten und Ingenieure
Bauleitung:
Campe Janda Architekten
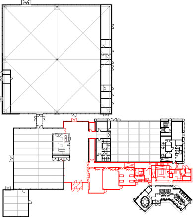
Die im Bremer Rhododendronpark gelegene aus historischen Gewächshäusern, einem neuen Schaugewächshaus und dem Entdeckerzentrum bestehende Botanika soll um eine Bildungseinrichtung zur Vermittelung naturwissenschaftlicher Inhalte in den Feldern Biologie, Botanik und Ökologie erweitert werden.
Hierfür wird die Typologie der Gewächshäuser mit ihren geneigten Dachflächen, den unterschiedlichen Höhen und der Tiefenstaffelung gewählt.
Als Fassadenmaterial ist eine über den gesamten Neubau sich erstreckende Glasplattenverkleidung auch vor den gedämmten Massivbauteilen vorgesehen. Die nach Süden und Westen orientierten Fensterflächen erhalten einen außenliegenden Sonnenschutz.
Das vorhandene Südhaus wird energetisch saniert. Es erhält eine neue Wärme-/Sonnenschutz-verglasung und eine neue Bodendämmung. Die westseitige Stirnwand wird demontiert und das Südhaus in dieser Richtung erweitert.
Das dann neue großzügige und beheizte Foyer erlaubt es, auch größere Besuchergruppen aufzunehmen und die notwendige Orientierung zum Eintritt in die Pflanzenwelt von Gewächshäusern und dem Besucherzentrum zu geben.
Eine breite Flurzone erschließt von hier aus die Räumlichkeiten zur naturwissenschaftlichen Bildung. Hier liegen die beiden zusammenschaltbaren Seminarräume und das Labor mit Blick in die Weite der Parklandschaft. Der bestehende Büroriegel der Verwaltung ist hiermit direkt über eine Treppe verbunden und schafft auch hier die Vorraussetzung einer engen Zusammenarbeit. Den Schulungsräumen zum gemeinsamen Lernen sind die hierfür wichtigen Lagermöglichkeiten direkt zugeordnet. Die technische Ausstattung des Labors ist in enger Abstimmung mit dem Bildungsressort geplant worden. Das Labor wird mit einfachen Tischen mit Wasseranschluß ausgestattet. Auf Gasleitungen wird verzichtet.
Während der Küchentrakt des vorhandenen Cafés abgebrochen und durch den Neubau ersetzt wird, ist für den pultdachgedeckten Gastraum eine energetische Sanierung vorgesehen. Die zur Zeit nicht gegebene Behindertengerechtigkeit wird mit neu geschaffenen Rampen hergestellt.
Die Küche mit ihren Nebenräumen ist an der Rückwand aufgereiht, die Anlieferung erfolgt störungsfrei vom Betriebshof aus.