![]() |
![]() |
![]() |
![]() |
![]() |
![]() |
![]() |
![]() |
![]() |
![]() |








EINFAMILIENHAUS
Anschrift:
Wunderburgpark, Oldenburg
Bauherr:
Franz Gensik
Ausführung:
2006
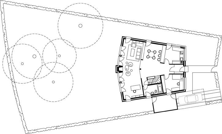
Unter Vermeidung gängiger Einfamilienhaus-Klischees wurde eine trapezförmige Hausform entwickelt, die auf die Geometrie und Ausrichtung des Grundstücks zugeschnitten ist, ohne dabei die städtebaulichen Vorgaben zu ignorieren. Zur Straßenseite wird eine zurückhaltende Eingeschossigkeit präsentiert, die zweigeschossig aufragende Gartenfassade verleiht einen fast autonomen Charakter. Ein ortsüblicher dunkler Klinker vermittelt regionalen Bezug, ein zentral angeordneter offener Kamin in Inneren bestimmt den erdgeschossigen Wohnbereich.