![]() |
![]() |
![]() |
![]() |
![]() |
![]() |
![]() |
![]() |
![]() |
![]() |










HOCHSCHULERWEITERUNG ZUM
INTERNATIONAL GRADUATE CENTER (IGC)
Anschrift:
Langemarckstraße, Bremen
Bauherr:
Hochschule Bremen Senatorin für Wissenschaft, Gesundheit und Verbraucherschutz
Ausführung:
2019
Mitarbeit:
Christian Neunaber
Bauleitung:
Campe Janda Architekten
Fotos:
Silke Schmidt
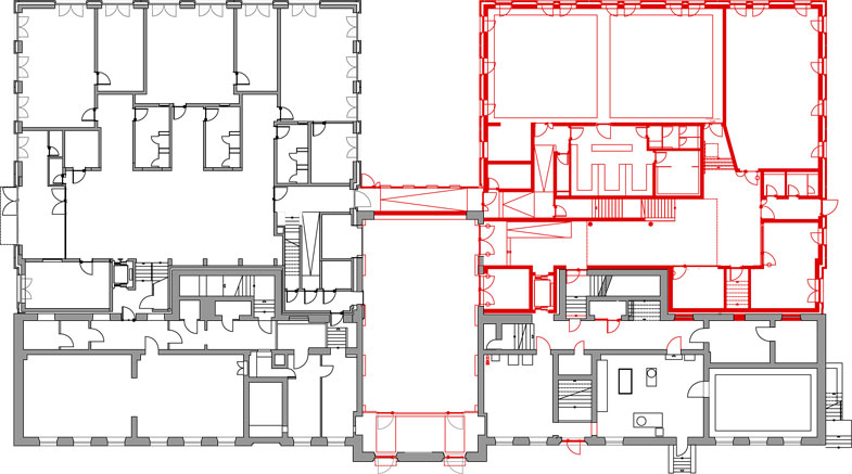
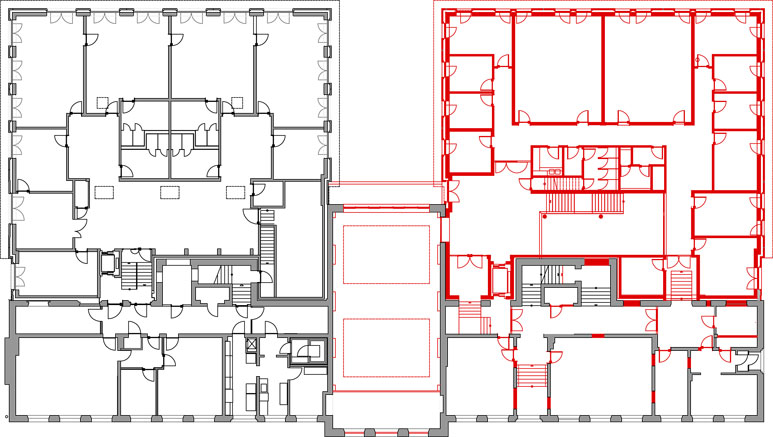
Für das International Graduate Center wurden in der ehemaligen Schule an der Langemarckstraße entsprechende Räumlichkeiten an zentraler Lage des Hochschulstandortes Hohentor geschaffen. Das 1891-94 vom Baurat Heinrich Flügel im Stil der mittelalterlichen Backsteingotik errichtete Volksschulgebäude wurde bereits zu Beginn dem Technikum zur Verfügung gestellt. Damit ist das Gebäude der eigentliche Gründungsort der Vorgängerinstitution Technikum der Hochschule Bremen. Gegenüber befindet sich das Hauptgebäude der Hochschule Bremen.
Als Erweiterung ist die baugleiche Kubatur der vor einigen Jahren fertiggestellten Kindertagesstätte gewählt worden. Damit wird die für das historische Gebäude so wichtige Symmetrie auf der rückwärtigen Grundstücksfläche wieder hergestellt.