![]() |
![]() |
![]() |
![]() |
![]() |
![]() |
![]() |
![]() |
![]() |
![]() |








KINDER- UND FAMILIENZENTRUM HOHENTOR
Anschrift:
Langemarckstraße, Bremen
Bauherr:
Immobilien Bremen AöR
Ausführung:
2014-16
Verant. Mitarbeit:
Doris Schulze
Bauleitung:
Campe Janda Architekten
Außenraumplanung:
Gasse Schumacher Schramm Landschaftsarchitekten
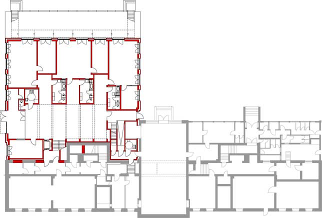
Durch den Abriss einer eingeschossigen Toilettenanlage aus den 1930er Jahren konnte die vorhandene Kita im Bau einer Volksschule im Stil des Historismus, 1891-94 von Heinrich Flügel erbaut und seit 2012 unter Denkmalschutz, durch einen Neubau erweitert werden:
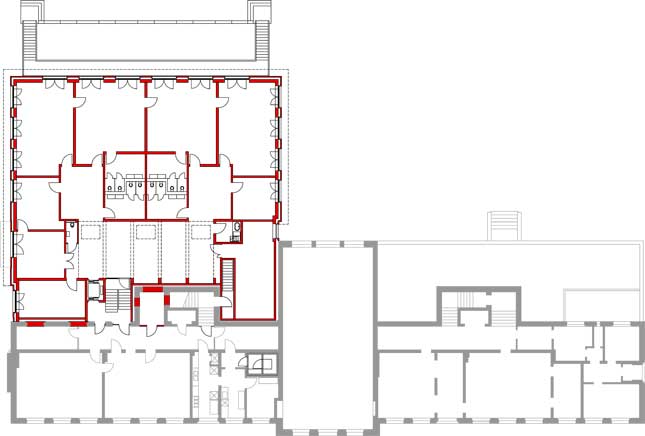
Drei U3-Gruppenräume im Erdgeschoss mit zugeordneten Ruheräumen und WC/Wickelbereichen liegen im Erdgeschoss mit angeschlossenem, neu gestaltetem U3-Spielbereich im Freigelände. Die vier Ü3-Gruppenräume, mit den entsprechend zugeordneten WC-Bereichen und Differenzierungsräumen im Obergeschoss, verfügen alle über die Möglichkeit, über einen Balkon und Treppen den direkten Weg ins Freie zu gelangen.
Die innere Erschließung des neuen Hauses erfolgt im Erdgeschoss über ein großzügiges Foyer und im Obergeschoss über einen großen Spielbereich. Die versetzte Anbindung an den Altbau erfolgt über ein neues Treppenhaus mit einem alle Ebenen anfahrenden Aufzug.
Um den Charakter eines Einzelbaukörpers in den Neustädter Wallanlagen beizubehalten, wurde die Erweiterung in einer dem Altbau angelehnte Fassadenordnung gestaltet. Der im Läuferverband gesetzte ocker-orange Backstein trägt zusätzlich zu einem Gesamtbild mit dem Altbau bei, zeigt sich dabei aber deutlich als Neubau.