![]() |
![]() |
![]() |
![]() |
![]() |
![]() |
![]() |
![]() |
![]() |
![]() |










KIRCHE UND GEMEINDEZENTRUM MATTHIAS CLAUDIUS
Umbau und Umnutzung zur Kindertagesstätte
Anschrift:
Wilhelm-Raabe-Straße 1, Bremen
Bauherr:
Bremische Evangelische Kirche
Ausführung:
ab 2010
Verant. Mitarbeit:
Doris Schulze
Bauleitung:
Campe Campe Janda Architekten BDA
Außenanlagen:
Gasse Schumacher Schramm
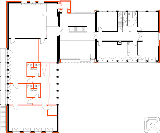
Die weitgehende Umnutzung des Gemeindezentrums wird zum Anlass genommen, durch einen radikalen Eingriff in das Innere des Kirchenraumes eine optimale Raumkonstellation für das Kindertagesheim zu schaffen. Das große Volumen des Kirchenraums wird genutzt um die Räume für 4 Kindergruppen um einen großzügigen Spiel- und Flurbereich anzuordnen. Für die Kinder soll eine Geborgenheit geschaffen werden, die von der Umgebung nicht abgeschirmt ist, sondern vielmehr durch das Öffnen der Fassaden die Verbindung zu den Freibereichen herstellt.
In den Kirchenraum wird eine 2. Ebene eingezogen, die zur Südseite hin mit einer Galerie einen 2-geschossigen Luftraum einfasst. Die hohen Kirchenfenster erhalten eine neue Verglasung, wodurch ein optimaler Lichteinfall und ein Sichtbezug nach draußen gewährleistet wird. Die Giebelseite der Kirche erhält mit der durchgehenden Befensterung ein neues Gesicht und öffnet sich zum Garten.
Die Funktionen des Gemeindebereichs werden aus dem Kirchenraum in den nördlichen Flügel der Anlage verlegt. Dort befinden sich nun das „Offene Cafe“ sowie ein Andachtsraum. Der Andachtsraum ist seiner Funktion entsprechend relativ klein und erhält seine besondere Qualität durch eine Wand- und Deckenverkleidung aus Holz sowie den direkten Außenbezug. Die baulichen Veränderungen in diesem Gebäudeteil beschränken sich im Wesentlichen auf die Anpassung der Fassaden, die Neuordnung des WC-Bereichs und den Einbau eines Beh.-WC.
Während das Volumen des Kirchenraumes als Chance zu einem Neubeginn begriffen wird, bleibt das Foyer zwischen den beiden Häusern weitestgehend in seiner Funktion und Substanz erhalten. Es zeugt von der hohen Qualität der ehemaligen Kirche. Die Räume im Untergeschoss stehen weiterhin für eine Nutzung durch die Gemeinde (Begegnung, Gymnastik etc.) zur Verfügung.
Die Ansichten erhalten, der Funktion entsprechend, weitgehend einheitliche Fensterformate, wo dies mit einfachen Mitteln wie Herausnehmen der Brüstung möglich ist.